ÝŒvŽm‚Ì‚½‚߂̎OBŠ¢ƒ}ƒjƒ…ƒAƒ‹
ŽOBŠ¢CADƒf[ƒ^

TOP PAGE
•”•ªÚ×}
‚iŒ`|–Ø‘¢
‚iŒ`|‚q‚b
‚iŒ`|“Sœ
‚eŒ`|–Ø‘¢
‚eŒ`|‚q‚b
‚eŒ`|“Sœ
‚rŒ`|–Ø‘¢
‚rŒ`|‚q‚b
‚rŒ`|“Sœ
Š¢•”•ª¡–@
‚iŒ`|ŽVEŒ¬E‘³
‚iŒ`|•½•”–ð•¨
‚iŒ`|“•”‘¼
‚eŒ`^‚tƒ^ƒCƒv
‚eŒ`^ƒtƒ‹ƒtƒ‰ƒbƒg
‚eŒ`^‚lƒ^ƒCƒv
‚rŒ`|49A
‰®ª–Ê
‚iŒ`
‚eŒ`^‚tƒ^ƒCƒv
‚eŒ`^ƒtƒ‹ƒtƒ‰ƒbƒg
‚eŒ`^‚lƒ^ƒCƒv
‚rŒ`
‚eŒ`^ƒtƒ‹ƒtƒ‰ƒbƒg Š¢•”•ª¡–@‚b‚`‚cƒf[ƒ^


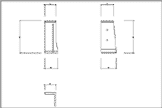
ŽVŠ¢ DXF PDF   áŽ~Š¢ DXF PDF   ‘³Š¢|‰E DXF PDF
ŽVŠ¢ áŽ~Š¢ ‘³Š¢|‰E
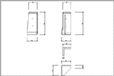
‘³Š¢|¶ DXF PDF   ˆê‘Ì‘³|‰E DXF PDF   ˆê‘Ì‘³|¶ DXF PDF
‘³Š¢|¶ ˆê‘ÌŒ^‘³Š¢|‰E ˆê‘ÌŒ^‘³Š¢|¶
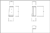
ŠpŠ¢|‰E DXF PDF   ŠpŠ¢|¶ DXF PDF   ŽOŠpŠ¥ DXF PDF
ŠpŠ¢|‰E ŠpŠ¢|¶ ŽOŠpŠ¥
•R–³ŽOŠpŠ¥ DXF PDF   “Ž~Š¢ DXF PDF   ‹÷“Ž~Š¢ DXF PDF
•R–³ŽOŠpŠ¥ “Ž~Š¢ “Ž~Š¢
·‚µ“Š¢ DXF PDF   ƒƒ^ƒ‹‹÷“ DXF PDF      
·‚µ“Š¢ ƒƒ^ƒ‹‹÷“  


ˆ¤’mŒ§“©ŠíŠ¢H‹Æ‘g‡