ÝŒvŽm‚Ì‚½‚߂̎OBŠ¢ƒ}ƒjƒ…ƒAƒ‹
ŽOBŠ¢CADƒf[ƒ^

TOP PAGE
•”•ªÚ×}
‚iŒ`|–Ø‘¢
‚iŒ`|‚q‚b
‚iŒ`|“Sœ
‚eŒ`|–Ø‘¢
‚eŒ`|‚q‚b
‚eŒ`|“Sœ
‚rŒ`|–Ø‘¢
‚rŒ`|‚q‚b
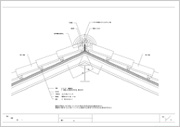
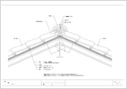
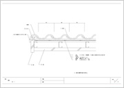
‚rŒ`|“Sœ
Š¢•”•ª¡–@
‚iŒ`|ŽVEŒ¬E‘³
‚iŒ`|•½•”–ð•¨
‚iŒ`|“•”‘¼
‚eŒ`^‚tƒ^ƒCƒv
‚eŒ`^ƒtƒ‹ƒtƒ‰ƒbƒg
‚eŒ`^‚lƒ^ƒCƒv
‚rŒ`|49A
‰®ª–Ê
‚iŒ`
‚eŒ`^‚tƒ^ƒCƒv
‚eŒ`^ƒtƒ‹ƒtƒ‰ƒbƒg
‚eŒ`^‚lƒ^ƒCƒv
‚rŒ`
‚rŒ`|49A|“Sœ •”•ªÚ×}‚b‚`‚cƒf[ƒ^


Œ¬•”‚P DXF PDF   Œ¬•”‚Q DXF PDF   ¶‘³•” DXF PDF
Œ¬•”‚P Œ¬•”‚Q ¶‘³•”
‰E‘³•” DXF PDF   •Ç•”‚P DXF PDF   •Ç•”‚Q DXF PDF
‰E‘³•” •Ç•”‚P •Ç•”‚Q
•Ç•”‚R DXF PDF   ’J•” DXF PDF   “•”‚P DXF PDF
•Ç•”‚R ’J•” “•”‚P
“•”‚Q DXF PDF   “•”‚R DXF PDF      
“•”‚Q “•”‚R  


ˆ¤’mŒ§“©ŠíŠ¢H‹Æ‘g‡